Посмотреть на карте

Офис Whitewill:

Пресненская набережная, 6с2, Башня «Империя», 3-й подъезд, офис 4315
«Колымажный, 10»
Клубный дом делюкс-класса рядом с Кремлевской набережной
от 165 м²
площадь квартиры
от 215 000 000 ₽
цена квартиры
Презентация клубного дома
Внутри — расположение дома, архитектура и инфраструктура
PDF 6.01 MB.
Время скачивания файла - 3 секунды
Презентация клубного дома
Внутри — расположение дома, архитектура и инфраструктура
← Можно пролистнуть →

О проекте

Рассказывают брокеры
Клубный дом премиум-класса
ЖК «Колымажный, 10» — 7-этажный дом премиум-класса на 24 квартиры площадью от 75 до 490 м², с потолками 3,2 метра. Последний этаж и мансарду занимает пентхаус с выходом на крышу. В «Колымажном» есть квартиры «под ключ» и со свободной планировкой. Выберите свой формат — получить готовую квартиры с отделкой и мебелью или оформить дом на свой вкус.
Expert 1
Наталья
Партнёр компании
Расположение
Дом расположен в историческом центре Москвы в окружении театров, музеев и культурных достопримечательностей. Поблизости находятся Александровский сад и Московский Кремль. В 5 минутах от дома находится станция метро «Кропоткинская», в 9 минутах — «Арбатская». Удобная транспортная развязка позволяет доехать за 5 минут до Садового кольца, а за 17 минут – до ТТК.
Expert 2
Кирилл
Партнёр компании
Архитектор проекта
Архитектор жилого комплекса «Колымажный, 10» — Михаил Посохин. Специалисты архитектурного бюро «Моспроект-2» бережно реконструировали дореволюционный доходный дом математика и инженера Карла Мазинга.
Expert 3
Алексей
Партнёр компании
Интерьеры квартир
Интерьеры квартир с отделкой в ЖК «Колымажный, 10» выполнены в классическом стиле. На пол положили мрамор и паркет из натурального дерева, потолки украсили хрустальные люстры и лепнина. Во всех квартирах установили дровяные камины. Ванные комнаты оформили кварцем, установили сантехнику ведущих брендов.
Expert 4
Ирина
Партнёр компании, тимлидер направления вторичной недвижимости

Планировки и цены квартир

Вы можете выбрать и купить квартиру в клубном доме «Колымажный, 10» в нашем разделе с планировками и ценами.
от 220 000 000 ₽
от 1 330 000 ₽ за м2
от 165 м2
Это типовая планировка, а не квартира. Альбом со всеми планировками можно скачать на сайте. Посмотреть все лоты можно переключив фильтр справа.
от 215 000 000 ₽
от 1 300 000 ₽ за м2
от 166 м2
Это типовая планировка, а не квартира. Альбом со всеми планировками можно скачать на сайте. Посмотреть все лоты можно переключив фильтр справа.
С Студия
1 спальня
2 спальни
3 спальни
4+ спальни
Другие варианты планировок:
1
1
interior-lot-145332
interior-lot-145332
interior-lot-145332
interior-lot-145332
interior-lot-145332
interior-lot-145332
interior-lot-145332
interior-lot-145332
interior-lot-145332
interior-lot-145332
interior-lot-145332
interior-lot-145332
interior-lot-145332
interior-lot-145332
interior-lot-145332
interior-lot-145332
interior-lot-145332
interior-lot-145332
interior-lot-145332
interior-lot-145332
interior-lot-145332
interior-lot-145332
interior-lot-145332
interior-lot-145332
interior-lot-145332
interior-lot-145332
interior-lot-145332
Квартира с 3 спальнями
215 000 000 ₽ 0 ₽ в месяц
3 спальни
С отделкой
166 м²
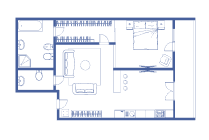
Квартира с 3-мя спальнями общей площадью 166 м² в клубном доме deluxe-класса «Колымажный, 10» в 12-ти минутах ходьбы от Кремля. Выполнена авторская отделка с использованием натуральных материалов. На полу выложены паркетная доска и плитка. Продуманы различные сценарии освещения, включая люстры, настенные светильники и споты. Высота потолков — 3,05 метра. Интерьеры укомплектованы мебелью и техникой от немецкого бренда Miele. Атмосферу тепла и уюта создает электрический камин. Спланированы 2 гостиные, 2 мастер-спальни с собственными санузлами, кухня, санузел с постирочной зоной, гостевой санузел, гардеробная и холл. Окна ориентированы на 2 стороны и наполняют комнаты естественным светом.
Лот #235715
plan-lot-145330
Квартира с 2 спальнями
220 000 000 ₽ 0 ₽ в месяц
2 спальни
Без отделки
165 м²
Лот #196135
Продайте свою квартиру в Колымажный, 10
Оставьте заявку, и эксперт свяжется с вами для добавления вашей квартиры на сайт
Продать квартиру
Наталья
plan
plan2
Наталья, Партнёр компании
light
light
light
light
lamp

Презентация
клубного дома

Расположение, архитектура и инфраструктура клубного дома «Колымажный, 10» в нашей pdf-презентации.
Каталог

Расположение

Клубный дом «Колымажный, 10» расположен по адресу: Москва, Колымажный переулок, 10. Запишитесь на экскурсию на нашем сайте.
Арбатская, 9 минут
Кропоткинская, 5 минут
Боровицкая, 7 минут
Садовое кольцо – 5 минут
Бульварное кольцо – 1 минута

Места поблизости

Дом расположен в историческом центре Москвы в окружении театров, музеев и культурных достопримечательностей.
  Храм Христа Спасителя
6 минут
Храм Христа Спасителя
  Московский Кремль
7 минут
Московский Кремль
  Красный Октябрь
15 минут
Красный Октябрь
  Дом культуры «ГЭС-2»
13 минут
Дом культуры «ГЭС-2»
  Александровский сад
7 минут
Александровский сад
  ГУМ
9 минут
ГУМ
  Большой театр
6 минут
Большой театр
  ЦУМ
6 минут
ЦУМ
  Кинотеатр Художественный
9 минут
Кинотеатр Художественный
  Пушкинский музей
1 минута
Пушкинский музей

Доступная ипотека

Подайте заявку на ипотеку и получите решение сразу из нескольких банков-партнёров.
Дистанционно одобрим ипотеку
Ставка от 21,9%
Решение за 72 часа
Ответ из нескольких банков
Решение в трудных ситуациях
Одобрить ипотеку
andrew
Анастасия
Ипотечный брокер

Посмотрите другие проекты

Не нашли подходящий лот? Посмотрите другие комплексы в центре Москвы.
Звонарский
Звонарский
от 310 000 000 ₽
от 124 м²
Парк Палас
Парк Палас
от 180 000 000 ₽
от 110 м²
Римский дом
Римский дом
от 190 000 000 ₽
от 165 м²
Итальянский квартал
Итальянский квартал
от 44 150 000 ₽
от 78 м²
Запишитесь на просмотр
Укажите свои контакты и менеджер свяжется с вами, чтобы уточнить удобное время просмотра
Записаться на сайте Записаться в WhatsApp Записаться в Telegram Записаться в Max